| |
The Vari Speed® R400 is a full-wave DC regenerative
control that provides high performance four quadrant speed and torque
control. The R400 solid state controller converts single phase AC
line power into an adjustable DC power to control 1/4 to 2, or 5 horsepower
DC motors.
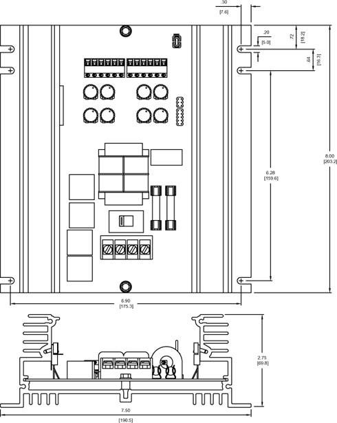
The R400's flexible design is easily selectable for speed or torque
mode, tachometer voltage, dual voltage and for horsepower size. The
R400 is designed with today's most desirable features including isolated
input signals, status indicators, alarm outputs. When performing frequent
directional changes, the R400 transfers excess system energy back
to the AC line rather than wasting additional energy by the use of
a dynamic brake resistor.
The R400 is designed, engineered and manufactured in the USA, and
is UL and cUL listed.
Regenerative (Four-Quadrant) Control
Regenerative DC drives are able to provide complete control
of a DC motor's speed and torque simultaneously. A regenerative
drive has the capability of producing torque in either braking or
motoring modes, while operating a motor's speed in a consistent
direction of rotation. The capability to provide braking torque
is a result of the drive's ability to operate in all for quadrants
of the motor's speed/torque curve.
A four-quad DC drive's ability to operate in a regenerative mode
is primarily provided by the additional power section included in
the design. Four additional SCR devices are utilized in comparison
to a standard NEMA Code K-type converter. These four additional
components allow for the complete control of both the voltage and
current flow to the armature of the DC motor, thus controlling both
the speed and torque.
| Standard Product Feature |
|
Application Benefit |
| Multiple rated unit |
|
One unit can be used for 120 or 240 VAC operation
of 1/4 to 2 HP PM or wound field DC motors |
| Regenerative control |
|
Allows 4-quadrant operation to maintain complete
control of motor and load |
| Speed or torque control |
|
Provides proper motor control for application
requirements |
| Excellent regulation performance |
|
Improves overall system operation |
| Fast acting current limit |
|
Can quickly react and compensate to load changes |
| 2- or 3-wire start/stop |
|
Provides flexibility in system logic |
| Isolated logic inputs |
|
Easy connection of peripheral equipment |
| Alarm output |
|
Provides remote indication of an undesirable
situation |
| Status indicators |
|
Visual indication of primary control status |
| 150% load capabilities |
|
Extra power for intermittent overloads |
| Reversible |
|
Simple external contact closure or + or - 10VDC
for motor shaft rotation reversing |
|
|
|

| |
Features
- Excellent regulation performance
- Fast acting current limit
- Starts into a rotating motor
- 50 or 60 Hz selectable
- Provides 150% load for one minute
- Two and three-wire start-stop
- Disable function
- Reversible
Applications
- Food and beverages
- Machinery and material handling
- Packaging and chemicals
| Selection |
Description Chasis
Version |
|
Part No. |
| 120 or 240 VAC selectable |
|
176B4000 |
| 120 or 240 VAC selectable, with
field supply |
|
176B4001 |
| 120 or 240 VAC selectable, 1/100
- 1/20 hp |
|
176B8013 |
| 240/230 volt , 5HP, with optional field |
|
176B8821 |
|
|
|